
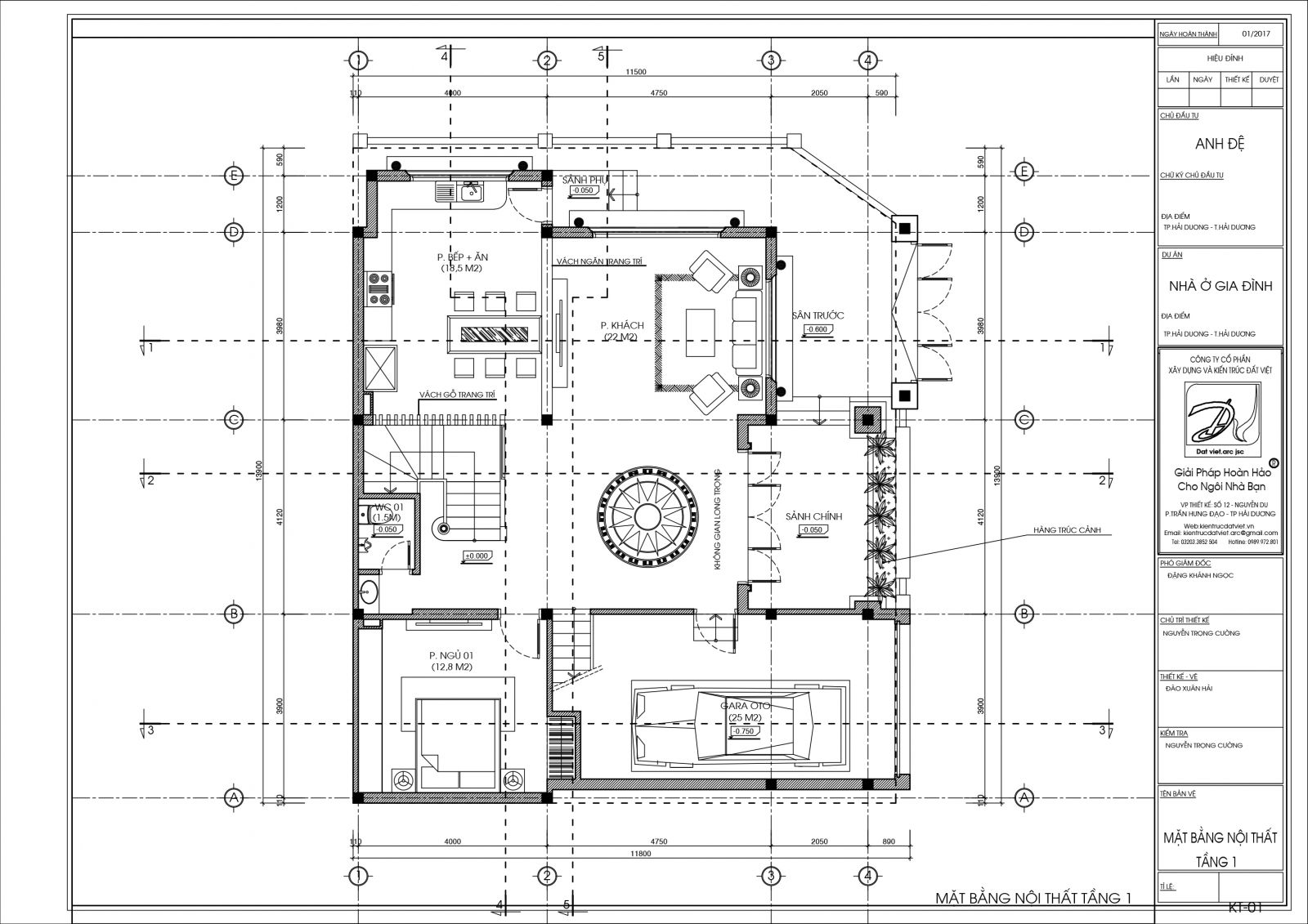
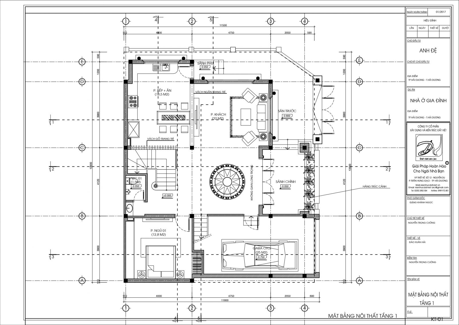
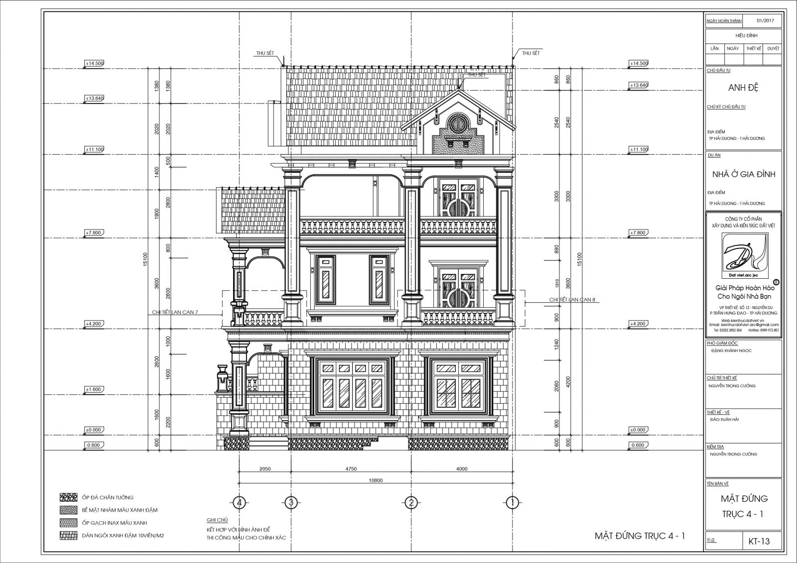
Chủ Đầu Tư: gia đình anh chị Bùi Hoàn Nguyên
Diện tích xây dựng: 800m2 ( 20mx40m )
Diện tích đất: 800m2 ( 20mx40m )
Quy mô công trình : khu biệt thự
Công năng tiện ích: nhà ở phục vụ sinh hoạt gia đình
Năm thiết kế: 2019
“Có vài cảm giác về không gian chúng tôi đã thấy được ở đâu đó – màu xanh thiên nhiên đập vào mắt mỗi sáng sớm, tiếng lá xào xạc vào mỗi buổi khuya. Những cảm giác này được chúng tôi đem đến cho khu biệt thự qua một thiết kế mới, ngôi nhà cho một gia đình 3 thế hệ –
những người yêu thích thiên nhiên và sự tươi mát. Thông qua việc giao tiếp với tự nhiên ở mọi thời điểm, con người và cây xanh trở nên gần gũi hơn, không gian mở ra nhưng vẫn có được sự riêng tư cần thiết. Đó là vấn đề đặt ra cho những không gian đông đúc, khói xe hiện nay.”

Một ngôi nhà có lẽ cần có giải pháp thiết kế để tạo sự riêng tư tối đa cho người sử dụng mà không ảnh hưởng tới tầm nhìn cũng như sự tự do của họ trong chính ngôi nhà của mình.”

à một thiết kế biệt thự đẹp hiện đại nằm trên khu đất 470 m2 với hơn 50% diện tích dành cho tự nhiên. 50% đó được đóng mở khéo léo thông qua những vách ngăn để con người có được cảm giác cây xanh ở khắp mọi nơi. Diện tích mặt nước được thiết kế xen kẽ cây xanh tạo cảm giác thân thiện và hình thành một không gian nghĩ dưỡng thực sự trong cuộc sống đô thị hiện đại, giúp cho những người sống trong công trình cảm nhận được sự liên kết với thiên nhiên.

Những vách ngăn kết thúc khoảng sân vườn để tạo sự riêng tư đồng thời đảm nhận vai trò kiến tạo không gian chức năng kế tiếp. Ánh nắng len lỏi đổ bóng xuống thềm nhà tạo nên nhiều góc nhìn mới lạ, ranh giới giữa trong và ngoài nhẹ nhàng để con người có thể cảm nhận trọn vẹn sự thay đổi của tự nhiên. Những “mảng xanh” là sự đóng mở các không gian giúp đối lưu không khí và làm mát cả toàn bộ không gian sống. Cả ngôi nhà như một cơ thể sống mang sứ mệnh kết nối con người với con người, con người với thiên nhiên.